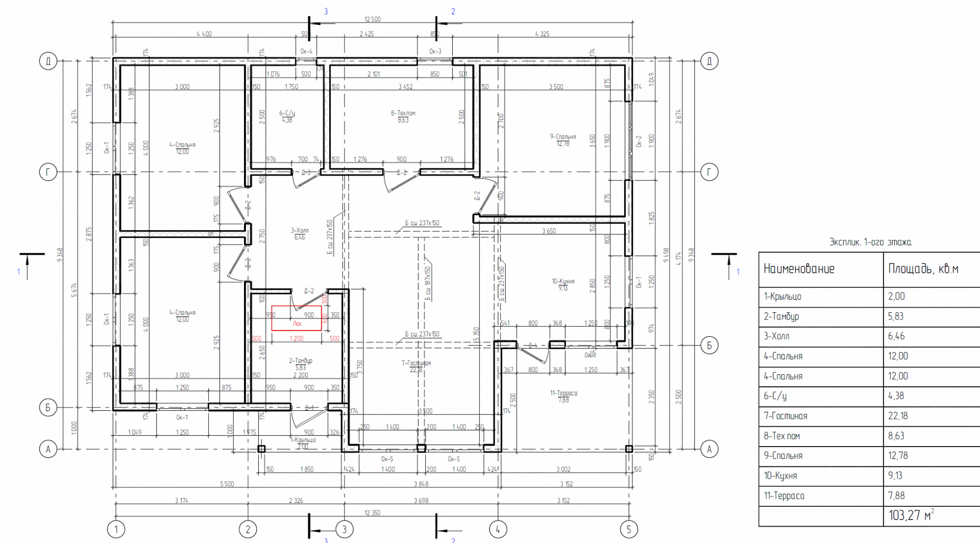
Cтроительство дома из СИП-панелей в Тверской области, Кимрский район, д. Светлое.