Компания SIPwall приступила к строительству дома в д. Апракисино, Костромской район!
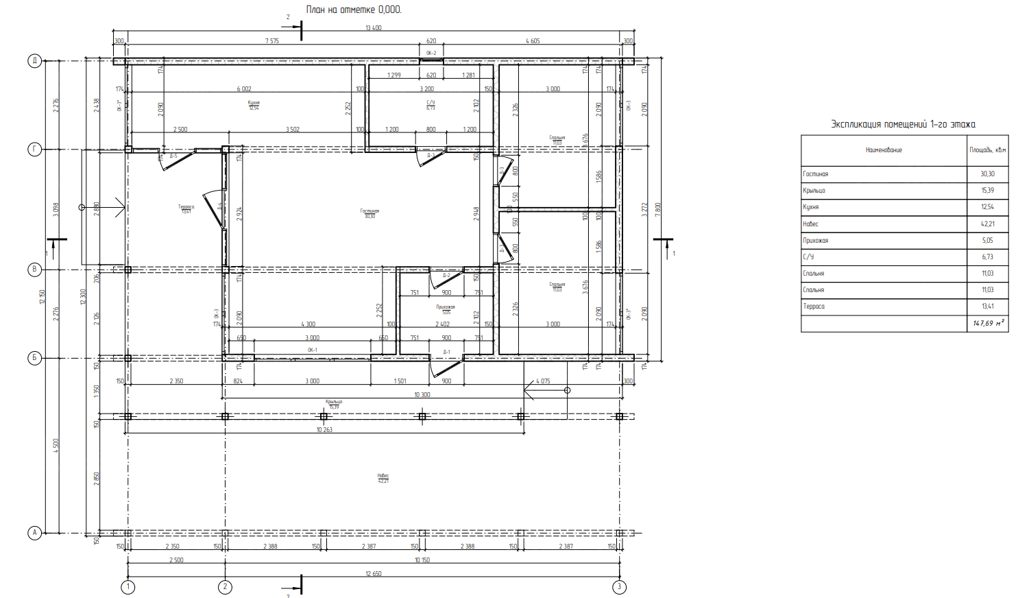
Мы начали реализацию индивидуального проекта одноэтажного дома из СИП-панелей общей площадью 147,69 м² в живописной деревне Апракисино, по ул. Коммунаров.
Процесс строительства
Карта объектов
Центральный офис SIPwall в г. Иваново
Адрес:
г. Иваново, ул. Тимирязева, д.1с2, офис 221.
Режим работы:
Пн - Пт - с 9 до 17 часов - по предварительной записи. Сб - Вс - по предварительной записи.