Компания SIPwall завершила строительство дома в стиле ХайТек по проекту "МИСТИКА-Е" в Нижегородской области, г.о. Бор, СНТ Спутник, уч. 94!
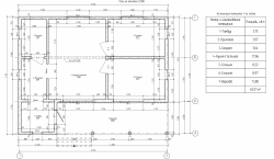
Основные параметры дома:
Общая площадь: 60,21 м²
Просторная кухня-гостиная (17,86 м²) — идеальна для семейных посиделок.
Две уютные спальни (8,22 м² и 8,97 м²) — отличное место для отдыха.
Современный санузел (3,64 м²) и удобная прихожая (3,97 м²).
Тамбур (3,75 м²) и просторная веранда (13,80 м²) для наслаждения природой.
Выполненные работы:
Полная сборка домокомплекта из СИП панелей.
Устройство мембранной кровли.






















