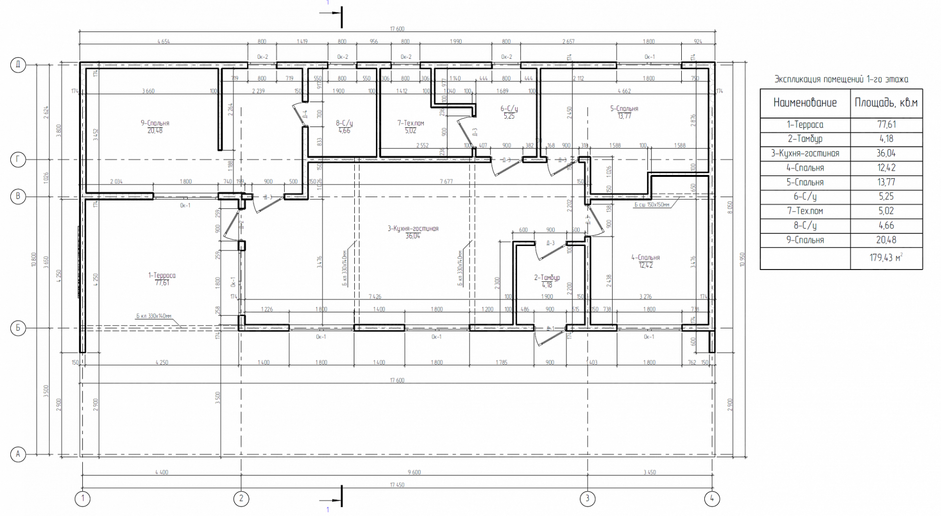
Компания SIPwall приступила к строительству современного дома в стиле ХАЙТЕК в Ленинградской области!