Компания SIPwall завершила строительство дома по индивидуальному проекту в Ивановском районе, д. Конохово, ул. Кипарисовая.
Основные характеристики проекта:
Местоположение: Ивановский район, д. Конохово, ул. Кипарисовая
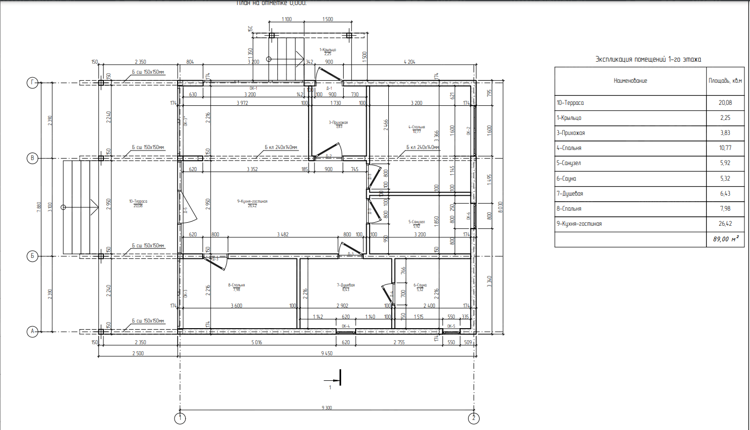
Полезная площадь дома: 89 м²
Этажность: 1 этаж
Выполненные работы:
Сборка домокомплекта: Монтаж стен и перекрытий из СИП панелей, обеспечивающих высокую энергоэффективность и долговечность конструкции.
Устройство кровли: Установка надежной и прочной крыши, которая защитит дом от любых погодных условий и придаст ему завершенный вид.
Проект этого дома включает просторную кухню-гостиную, две спальни, санузел, сауну, душевую и уютную террасу, где будущие жильцы смогут наслаждаться отдыхом на свежем воздухе.
Мы используем только высококачественные материалы и современные технологии строительства, что гарантирует долговечность и надежность нашего жилья.





























