Первая отгрузка дома в 2026 году и старт строительства нового объекта
Вчера, 13.01.2026, компания SIPwall выполнила первую отгрузку домокомплекта заказчику в новом строительном сезоне 2026 года.
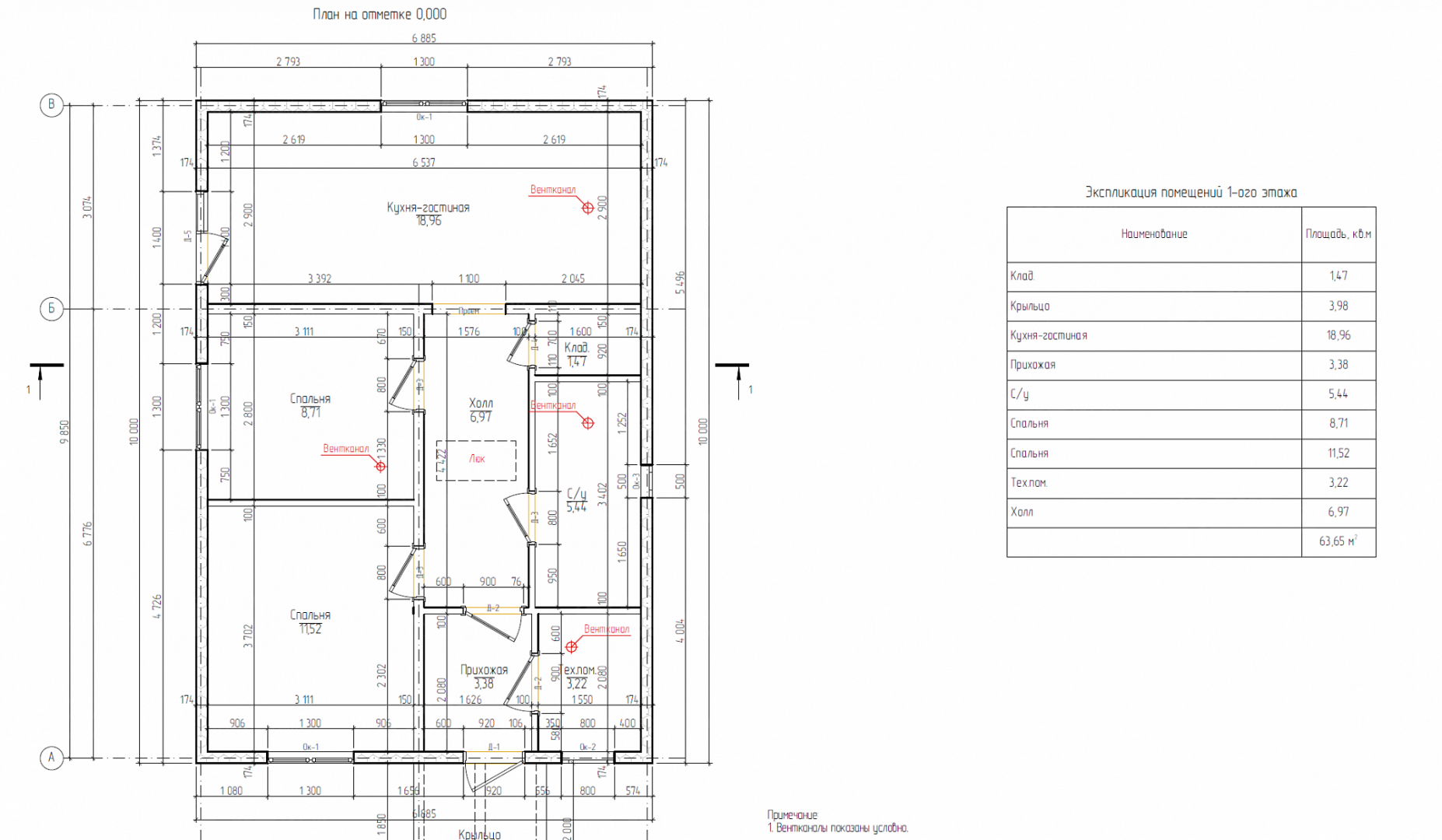
Объект расположен по адресу: Ярославская область, Рыбинский район, ЖК Назарово
Процесс строительства
Карта объектов
Центральный офис SIPwall в г. Иваново
Адрес:
г. Иваново, ул. Тимирязева, д.1с2, офис 221.
Режим работы:
Пн - Пт - с 9 до 17 часов - по предварительной записи. Сб - Вс - по предварительной записи.