Начало строительства дома по индивидуальному проекту в Ленинградской области, Орехово-Северное, ул. Главная, 22
Дорогие друзья!
Мы рады сообщить, что компания SIPwall приступила к строительству нового дома по индивидуальному проекту в живописном поселке Орехово-Северное, расположенном в Ленинградской области на улице Главная.
Основные характеристики проекта:
Местоположение: Ленинградская область, Орехово-Северное, ул. Главная
Этажность: 2 этажа
Площадь первого этажа: 67,16 м²
Площадь второго этажа: 43,12 м²
Общая полезная площадь: 110,28 м²
Планируемые работы:
Сборка домокомплекта: Монтаж стен и перекрытий из СИП панелей, что позволит создать теплый и уютный дом с высокой степенью теплоизоляции.
Устройство кровли: Установка прочной и долговечной крыши, которая защитит дом от всех погодных условий и придаст ему завершенный вид.
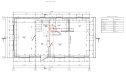
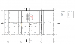
Планировка дома:
Первый этаж:
Хозпомещение - 12 м²
Гостиная - 23,89 м²
Кухня - 6,22 м²
Санузел - 5,69 м²
Спальня - 19,36 м²
Второй этаж:
Холл - 6,20 м²
Спальня 1 - 19,51 м²
Спальня 2 - 17,41 м²
Следите за нашими обновлениями, чтобы быть в курсе всех этапов строительства и увидеть фотографии нашего прогресса! Мы гордимся своими проектами и стремимся создавать дома, которые станут уютным местом для жизни и отдыха.
SIPwall – строим надежные и энергоэффективные дома для вашей комфортной жизни!











