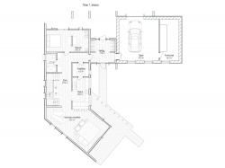
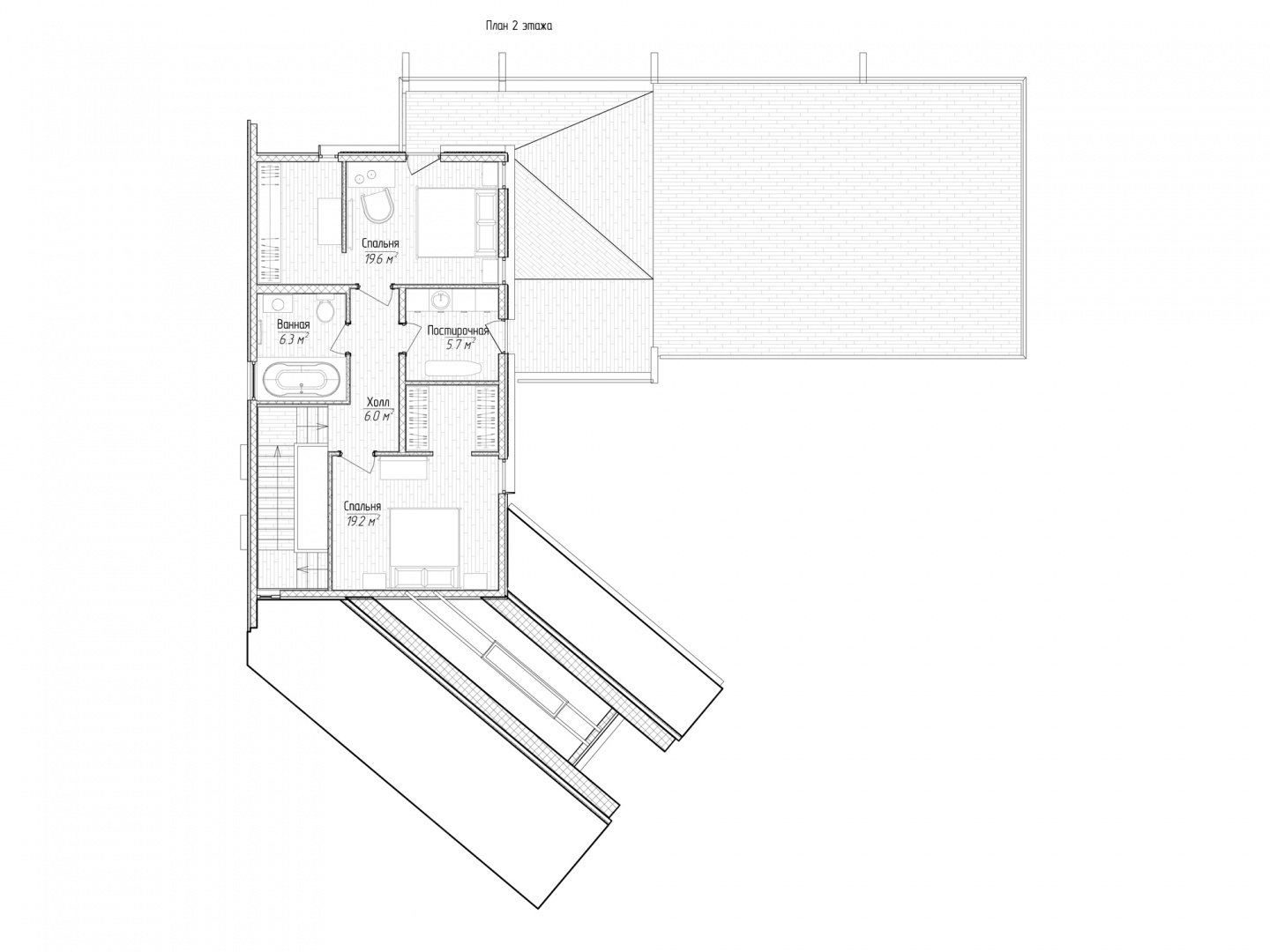
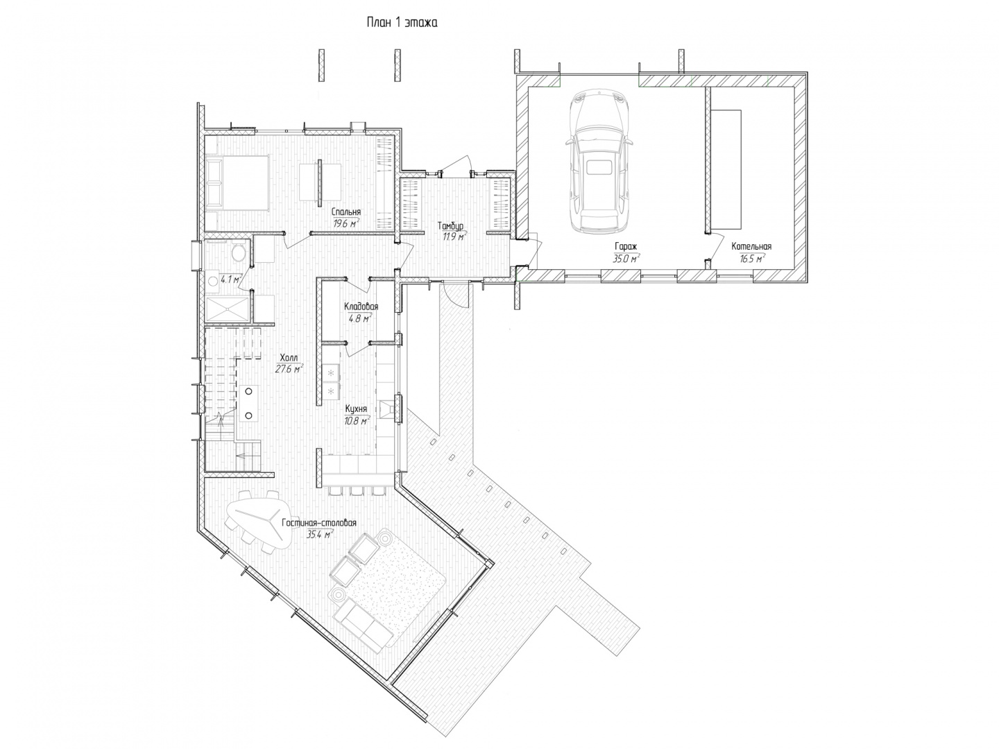
Компания СИПВОЛЛ завершила строительство дома из СИП панелей по индивидуальному проекту в Белгородской области, г. Старый Оскол.
Фундамент -монолитная плита - выполнена Заказчиком
Комплектация домокомплекта: несущие стены дома выполнены из СИП панелей 174 мм., внутренние несущие стены выполнены из СИП панелей 174 мм., и внутренние не несущие перегородки выполнены выполнены из СИП панелей 124 мм.. Перекрытие межэтажное - выполнено по каркасной технологии с настилом из OSB-3 толщиной 22 мм. Кровля - из СИП панелей - 224 мм производства компании СИПВОЛЛ.
Все СИП панели SIPwall толщиной 224/174/124 мм (плиты OSB-3 толщиной 12 мм "Калевала" Россия и фасадный пенополистирол ПСБ-С 25 по ГОСТ 15588-14 толщиной 200/150/100 мм производства завода "PolarPlast", Россия) нарезаны и обрусованы сухим строганным брусом в соответствии с проектной документацией.
Домокомплект - изготовлен по индивидуальному проекту из СИП панелей произведенный по технологии SIPwall (ЭКОПАН) на собственном заводе расположенном в г. Шуя, Ивановской области. При изготовлении домокомплекта панельно каркасного дома используется только сухой строганный брус камерной сушки, обработанный огнебиозащитным составом.
Все СИП панели домокомплекта нарезаны и обрусованы сухим строганным брусом в соответствии с проектной документацией, разработанной собственным проектным отдел компании "SIPwall".
На выходе с завода «СИПВОЛЛ» домокомплект имеет 99-% ную готовность.
Монтажные работы - выполняются профессиональной бригадой компании SIPwall



