Компания СИПВОЛЛ завершила строительство дома из СИП панелей по индивидуальному проекту, в д. Колокуново, Ярославской области.
Фундамент - Ж/Б сваи
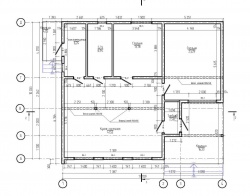
Комплектация домокомплекта: ПРЕМИУМ
Комплектация домокомплекта: перекрытие на отметке +0.000 - СИП - 224У мм., несущие стены дома выполнены из СИП панелей 174 мм., внутренние несущие стены выполнены по каркасной технологии. Кровля - выполнена из СИП панелей 224У мм.
Все СИП панели SIPwall толщиной 224/174/124 мм (плиты OSB-3 толщиной 12 мм "Калевала" Россия и фасадный пенополистирол ПСБ-С 25 по ГОСТ 15588-14 толщиной 200/150/100 мм производства завода "PolarPlast", Россия) нарезаны и обрусованы сухим строганным брусом камерной сушки в соответствии с проектной документацией.
Домокомплект - изготовлен по проекту из СИП панелей произведенный по технологии SIPwall (ЭКОПАН) на собственном заводе расположенном в г. Шуя, Ивановской области. При изготовлении домокомплекта панельно каркасного дома используется только сухой строганный брус камерной сушки, обработанный огнебиозащитным составом.
На выходе с завода «СИПВОЛЛ» домокомплект имеет 99-% ную готовность.
Монтажные работы - выполняются профессиональной бригадой компании SIPwall




















































