Компания СИПВОЛЛ приступила к строительству дома из СИП панелей по индивидуальному проекту, в КП Изумруд село Ново-Талицы, Ивановской области.
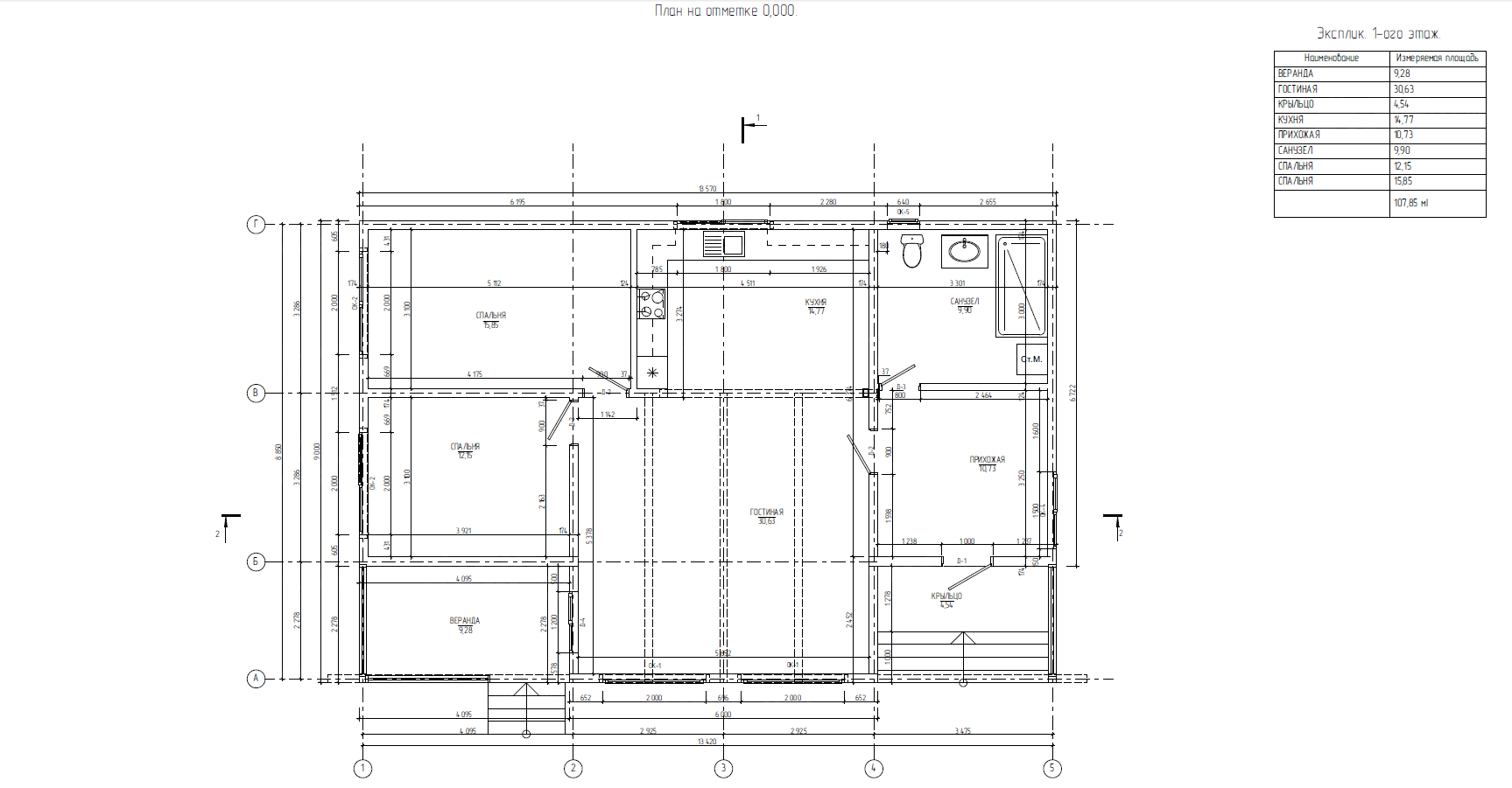
Комплектация домокомплекта: ЛЮКС
Все СИП панели SIPwall толщиной 224/174/124 мм (плиты OSB-3 толщиной 12 мм "Калевала" Россия и фасадный пенополистирол ППС-14 толщиной 200/150/100 мм производства, Россия) нарезаны и обрусованы сухим строганным брусом камерной сушки в соответствии с проектной документацией.
Домокомплект - изготовлен по проекту из СИП панелей произведенный по технологии SIPwall (ЭКОПАН) на собственном заводе расположенном в г. Шуя, Ивановской области. При изготовлении домокомплекта панельно каркасного дома используется только сухой строганный брус камерной сушки, обработанный огнебиозащитным составом.
На выходе с завода «СИПВОЛЛ» домокомплект имеет 99-% ную готовность.
Монтажные работы - выполняются профессиональной бригадой регионального представителя.













