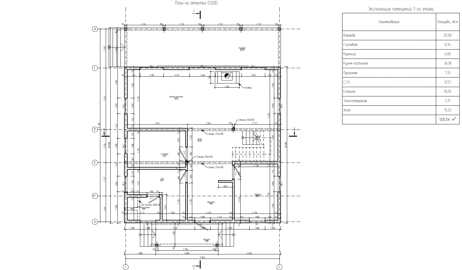
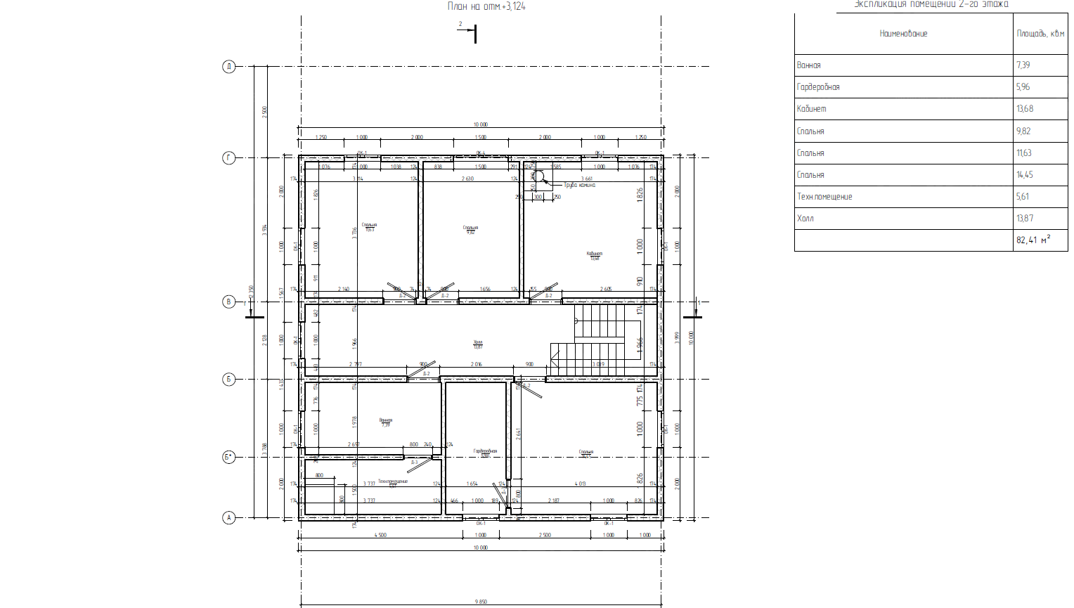
Региональный представитель приступил к строительству дома из СИП панелей по индивидуальному проекту, в Ленинградской области, Кировский район, г. Отрадное.
Фундамент - Ж/Б сваи;
Комплектация домокомплекта: ЛЮКС
Комплектация домокомплекта: перекрытие на отметке +0.000 - СИП - 224У мм., несущие стены дома выполнены из СИП панелей 174 мм., внутренние несущие стены выполнены из СИП панелей 174 мм., внутренние не несущие перегородки выполнены из СИП панелей 124 мм. Кровля - выполнена из СИП панелей 224У мм.
Все СИП панели SIPwall толщиной 224/174/124 мм (плиты OSB-3 толщиной 12 мм "Калевала" Россия и фасадный пенополистирол ПСБ-С 25 по ГОСТ 15588-14 толщиной 200/150/100 мм производства завода "PolarPlast", Россия) нарезаны и обрусованы сухим строганным брусом камерной сушки в соответствии с проектной документацией.
Домокомплект - изготовлен по проекту из СИП панелей произведенный по технологии SIPwall (ЭКОПАН) на собственном заводе расположенном в г. Шуя, Ивановской области. При изготовлении домокомплекта панельно каркасного дома используется только сухой строганный брус камерной сушки, обработанный огнебиозащитным составом.
На выходе с завода «СИПВОЛЛ» домокомплект имеет 99-% ную готовность.
Монтажные работы - выполняются профессиональной бригадой компании SIPwall

















