Компания SIPwall приступила к строительству дома по индивидуальному проекту БарнХаус 86 в Ленинградской области, д. Васильево
Мы рады сообщить о начале нового проекта – строительства дома по индивидуальному проекту БарнХаус 86 в деревне Васильево, Ленинградской области. За основу взят проект с сайта БарнХаус Шале 100.2500, который отличается уникальным дизайном и высокой функциональностью.
Основные характеристики проекта БарнХаус 86:
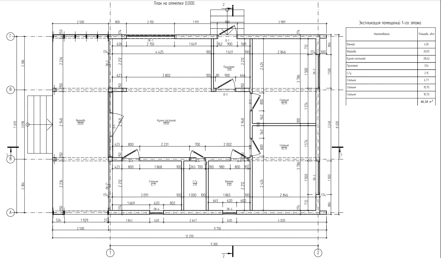
Площадь: 86 м²
Стиль: БарнХаус
Материалы: СИП панели, обеспечивающие высокую теплоизоляцию и долговечность конструкции
Планируемые работы:
Сборка домокомплекта: Монтаж стен и перекрытий из СИП панелей
Устройство кровли: Установка надежной и прочной крыши
Установка окон ПВХ: Современные окна для отличной тепло- и шумоизоляции
Проект БарнХаус 86 – это современный дом, который сочетает в себе стильный внешний вид и практичность, обеспечивая комфортное проживание в любое время года.
Следите за нашими обновлениями, чтобы быть в курсе хода строительства и увидеть фотографии нашего прогресса. Мы всегда рады делиться с вами новыми достижениями и идеями!











