Компания SIPwall завершила строительство дома по индивидуальному проекту в д. Панеево, Ивановского района!
Дорогие друзья!
С радостью сообщаем, что компания SIPwall успешно завершила строительство одноэтажного дома по индивидуальному проекту в деревне Панеево, Ивановского района. Этот дом сочетает в себе современный стиль и комфорт, идеально подходя для семейного проживания.
Основные характеристики проекта:
Местоположение: д. Панеево, Ивановский район
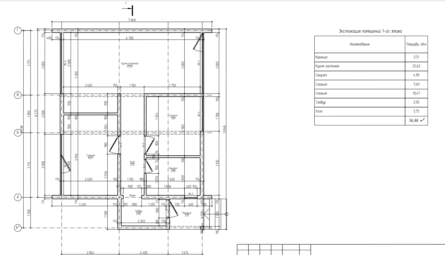
Полезная площадь: 56,86 м²
Этажность: 1 этаж
Планировка дома:
Крыльцо: 2,51 м²
Кухня-гостиная: 22,62 м²
Санузел: 4,90 м²
Спальня 1: 7,69 м²
Спальня 2: 10,47 м²
Тамбур: 2,92 м²
Холл: 5,75 м²
Этот уютный дом включает просторную кухню-гостиную, две уютные спальни, функциональную прихожую, холл и санузел. Также предусмотрено крыльцо, которое придает дому завершенный и привлекательный внешний вид.
Выполненные работы:
Сборка домокомплекта: Монтаж стен и перекрытий из СИП панелей, обеспечивающих дому высокую энергоэффективность и долговечность.
Устройство кровли: Установка надежной и прочной крыши, которая защищает дом от любых погодных условий и придает ему завершенный вид.
Мы использовали только высококачественные материалы и передовые технологии строительства, что гарантирует долговечность и надежность нашего жилья. Мы гордимся результатами нашей работы и уверены, что новый дом станет комфортным и уютным местом для своих владельцев.
Следите за нашими обновлениями, чтобы увидеть фотографии завершенного проекта и узнать о новых достижениях.
Узнать больше о наших проектах и услугах можно на нашем сайте: sipwall.ru





















