Компания SIPwall рада сообщить, что завершила строительство стильного и уютного загородного дома по индивидуальному проекту в деревне Заречье, ул. Престижная, д. 35 Ивановского района.
Основные характеристики дома:
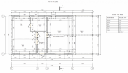
Просторная комната – 21,20 м² с выходом на террасу (18 м²)
Удобная кухня – 8,35 м²
Парная – 5,34 м², идеальна для отдыха и расслабления
Большой санузел – 9,96 м²
Этапы работ:
Устройство фундамента
Сборка энергоэффективного домокомплекта из СИП-панелей
Монтаж кровли
Установка окон и дверей
Следите за нашими новостями – будем делиться подробностями и фотоотчётами со стройплощадки!
Хотите свой уникальный проект дома? Свяжитесь с нами – поможем воплотить мечту о комфортной загородной жизни!


























