Завершение строительства дома по индивидуальному проекту в коттеджном поселке Алёхново, Истринский район, Московская область!
Дорогие друзья, рады сообщить, что компания SIPwall завершила строительство дома по индивидуальному проекту в поселке Алёхново, Истринского городского округа. Этот стильный и функциональный дом станет идеальным местом для комфортного загородного проживания!
Выполненные работы:
Сборка домокомплекта из СИП панелей для создания надежного и энергоэффективного дома
Устройство кровли для защиты от любых погодных условий
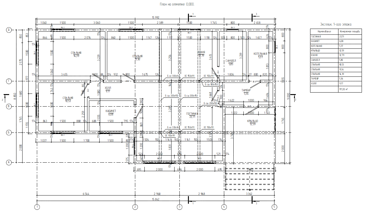
Основные параметры: Общая площадь дома: 117,2 м²
Внутренняя планировка: просторная гостиная, кухня, кабинет, несколько уютных спален, санузел, котельная, а также тамбур и прихожая для удобства и функциональности.
Следите за нашими новостями, чтобы не пропустить этапы строительства и фотоотчеты о ходе работ!






















