Компания SIPwall завершила строительство индивидуального дома в стиле А-Фрейм в деревне Литвиново, Угличский район, Ярославская область
Дорогие друзья!
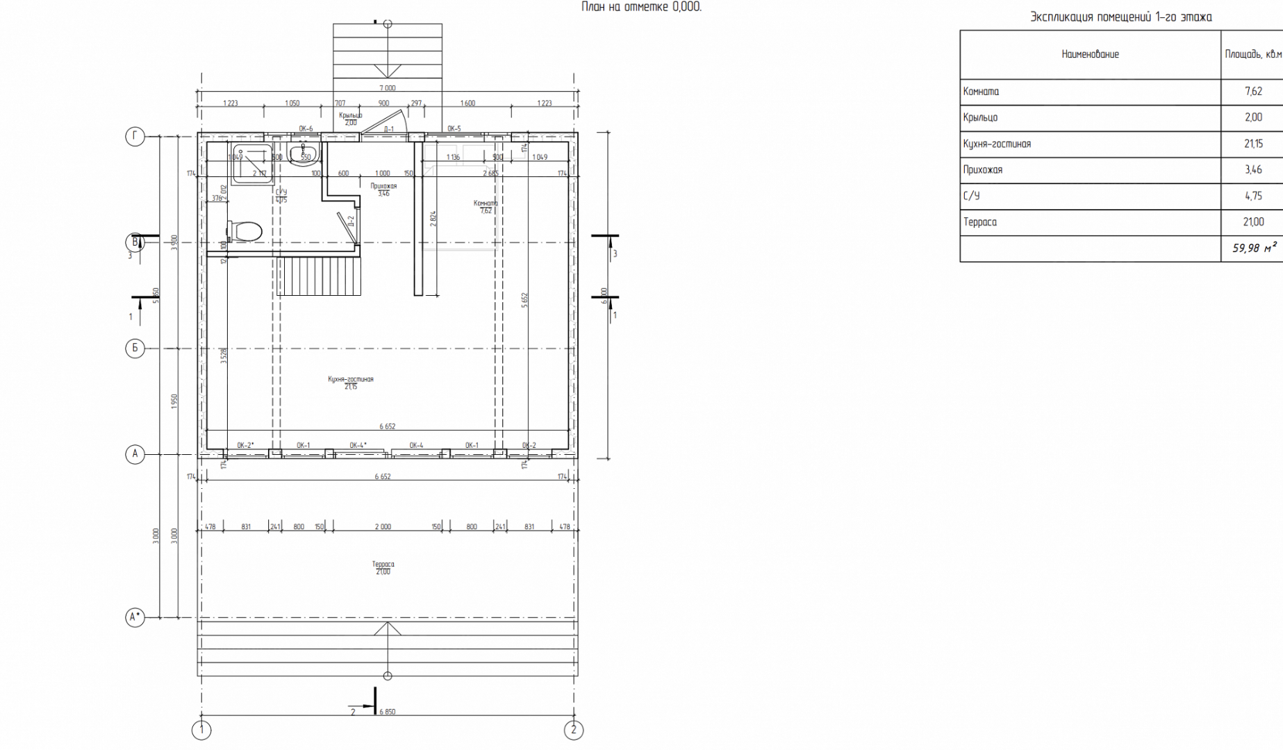
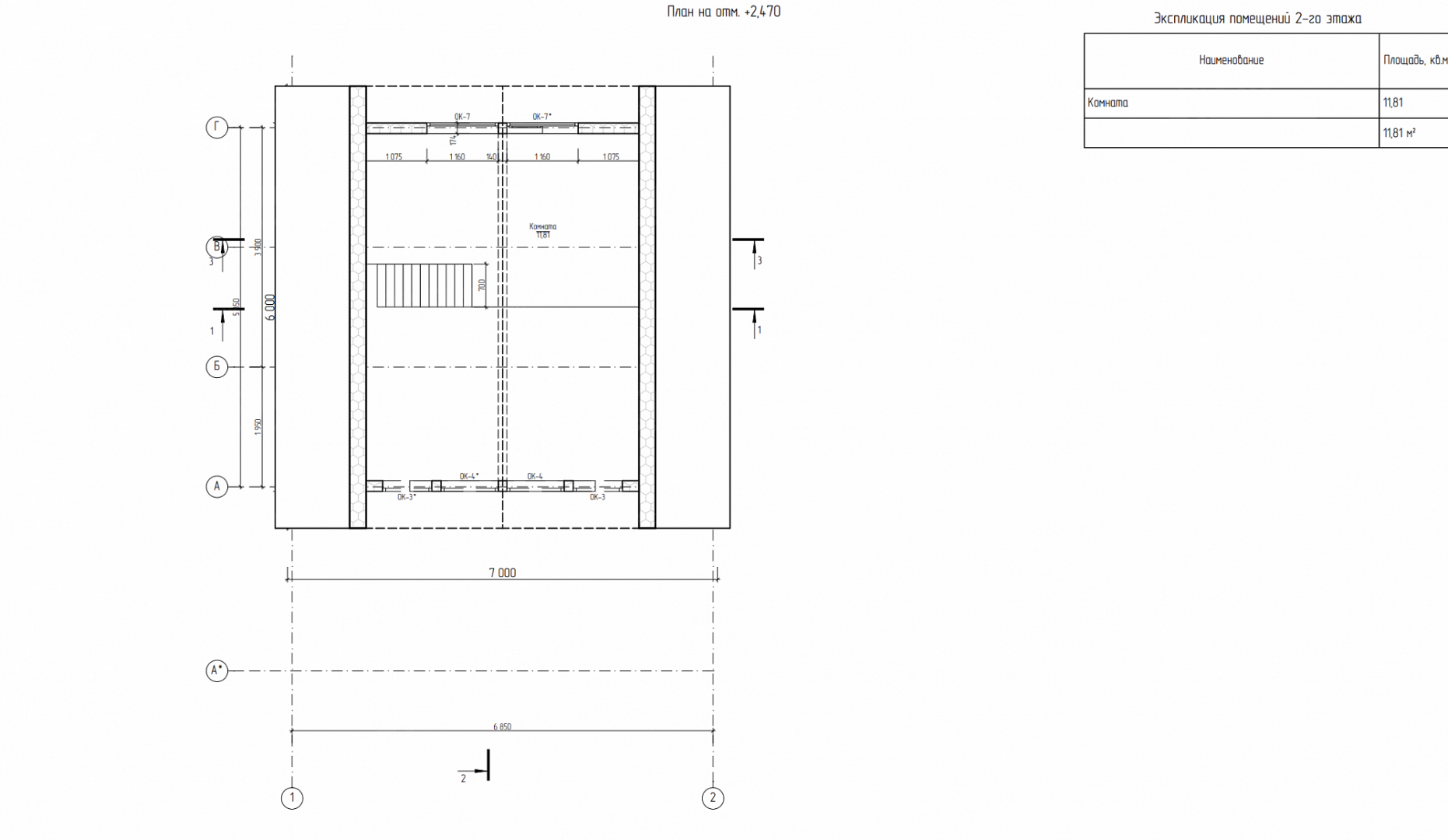
Рады сообщить вам о завершении строительства очередного дома из СИП панелей по индивидуальному проекту в стиле А-Фрейм в деревне Литвиново, Угличского района, Ярославской области.
Дом в стиле А-Фрейм – это современное, функциональное и энергоэффективное жилье, идеально подходящее для комфортного проживания в любое время года. Проект сочетает в себе уникальный архитектурный стиль, высокое качество материалов и профессиональное выполнение всех строительных работ.
Основные этапы строительства:
-Сборка домокомплекта: Быстрый и качественный монтаж стен и перекрытий из СИП панелей, что обеспечило дому отличные теплоизоляционные характеристики.
-Устройство кровли: Надежная и прочная крыша, которая защитит дом от любых погодных условий.
-Установка окон и дверей: Современные ПВХ окна и двери, обеспечивающие отличную тепло- и шумоизоляцию.
-Внешняя отделка: Завершенные работы по отделке придают дому уют и современный вид.
-Благодарим всех, кто принимал участие в этом проекте, и поздравляем наших новых счастливых владельцев с их новым домом!







































