Строительство дома в стиле БарнХаус по проекту "БарнХаус 110" в д. Иванцево, ул. 5-я Посадская, 8
Дорогие друзья!
Компания SIPwall приступила к строительству дома по проекту "БарнХаус 110" в деревне Иванцево, ул. 5-я Посадская, 8.
Этот стильный и современный дом в стиле БарнХаус станет идеальным выбором для любителей простоты и функциональности в архитектуре.
Текущие работы на объекте:
Фундамент: Устройство надежного фундамента на ж/б сваях, обеспечивающих устойчивость и долговечность конструкции.
Сборка домокомплекта: Монтаж стен и перекрытий из СИП панелей, что гарантирует высокую теплоизоляцию и прочность.
Устройство кровли: Установка прочной крыши, которая защитит дом от любых погодных условий.
Устройство фасада: Выполнение фасадных работ для придания дому современного и эстетичного внешнего вида.
Установка окон: Монтаж оконных конструкций, обеспечивающих хорошее естественное освещение и комфорт.
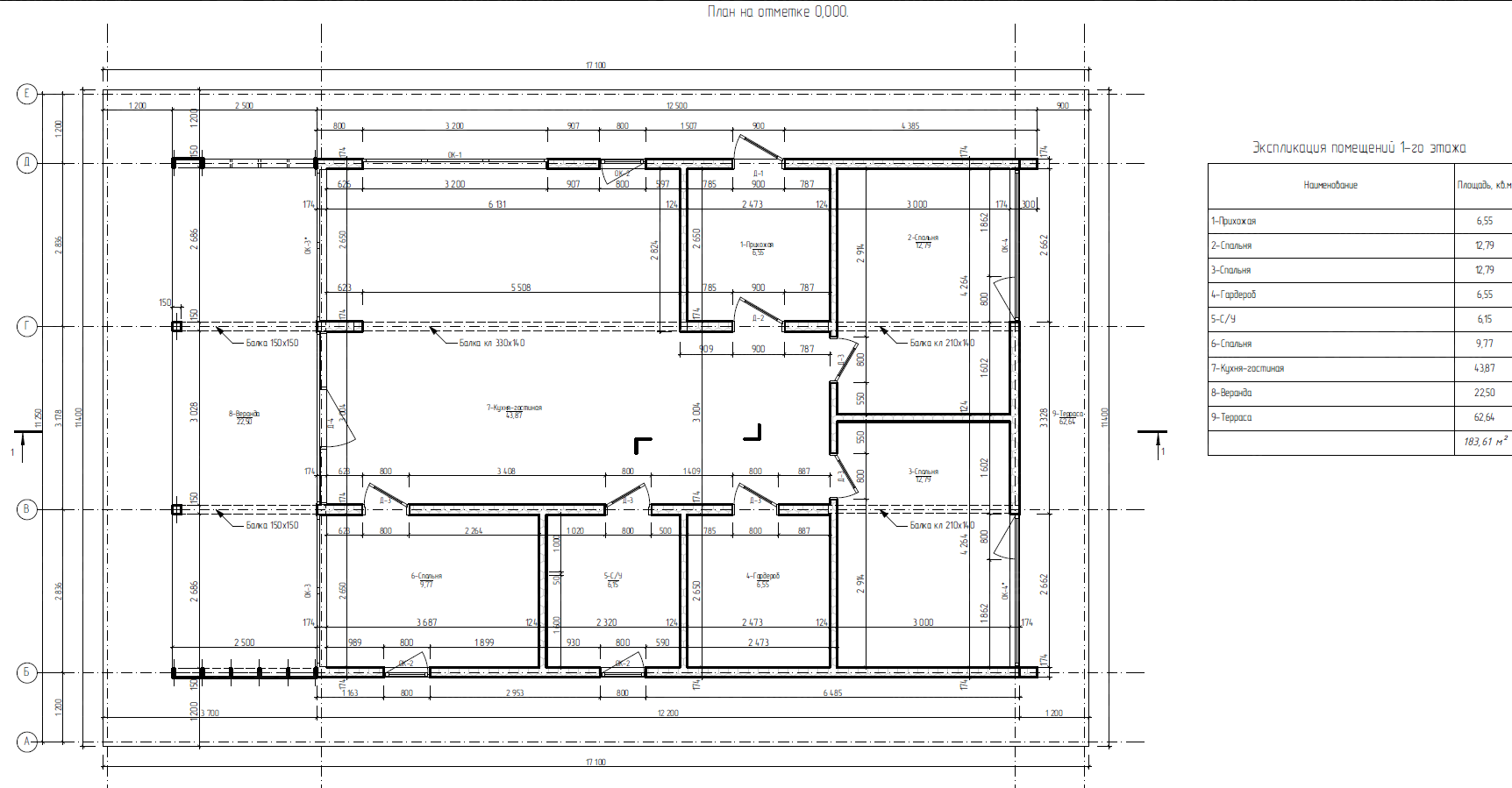
Характеристики проекта:
Общая площадь: 183,61 м²
Просторная кухня-гостиная, спальни, гардеробная, санузел, веранда и терраса создадут уютную атмосферу для комфортной жизни.
Следите за новостями на нашем сайте, чтобы быть в курсе всех этапов строительства!







































