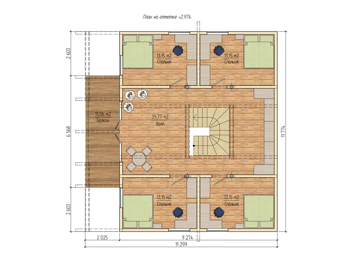
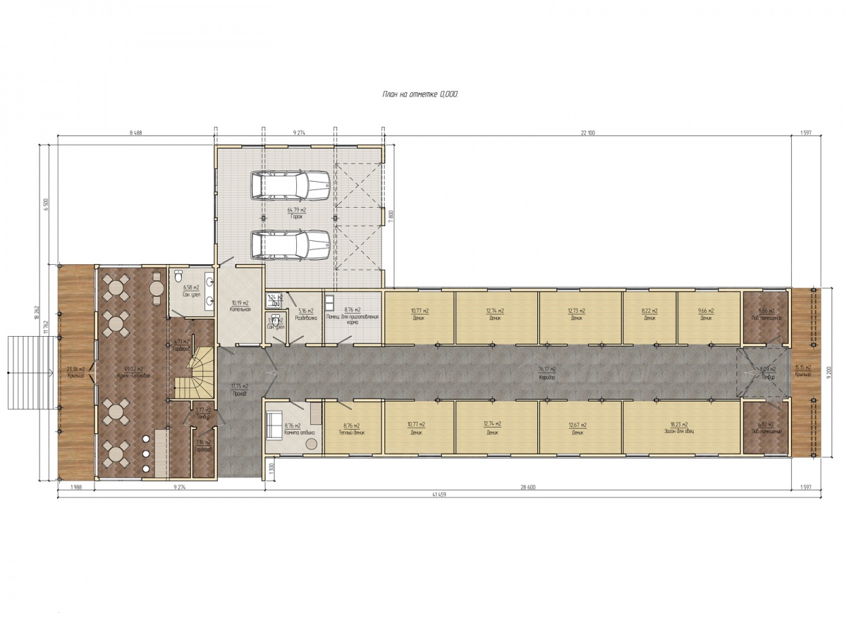
Строительство большого дома с конюшней ведется по СИП технологии в г. Плес, Ивановской области
Фундамент - комбинированный винтовые сваи с литым наконечником производства компании SIPwall + ленточный фундамент из несъемной опалубки.
Домокомплект - изготовлен по индивидуальному проекту из СИП панелей произведенный по технологии SIPwall (ЭКОПАН) на собственном заводе расположенном в г. Шуя, Ивановской области. При изготовлении домокомплекта панельно каркасного дома используется только сухой строганный брус камерной сушки, обработанный огнебиозащитным составом.
Все СИП панели домокомплекта нарезаны и обрусованы сухим строганным брусом в соответствии с проектной документацией, разработанной собственным проектным отдел компании "SIPwall".
На выходе с завода «СИПВОЛЛ» домокомплект имеет 99-% ную готовность.
Монтажные работы - ведутся профессиональной бригадой компании SIPwall
















































