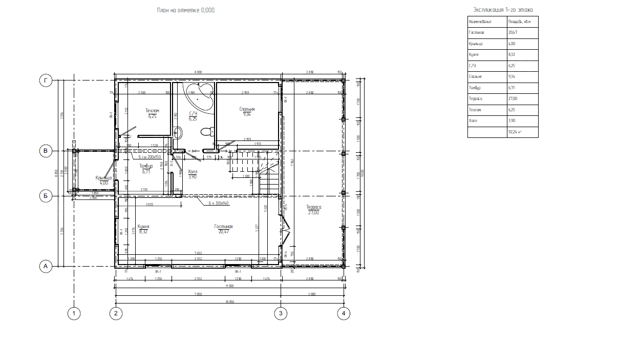
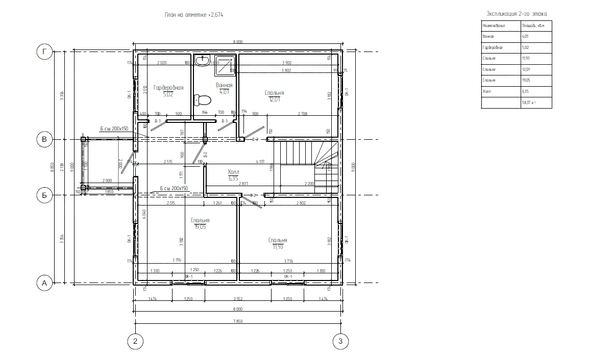
Строительство дома по проекту "Дилижанс 8х9" в Вологодской области, пос. Майский, ул. Дачная
Дорогие друзья!
Рады сообщить, что компания SIPwall приступила к строительству нового дома по проекту "Дилижанс 8х9" в поселке Майский, Вологодской области. Этот уютный дом станет идеальным местом для комфортного проживания всей семьей.
Планируемые работы:
Монтаж домокомплекта: Установка стен и перекрытий из СИП панелей для создания прочной и теплой конструкции.
Устройство кровли: Монтаж качественной кровли, обеспечивающей надежную защиту от любых погодных условий.
Следите за нашими обновлениями, чтобы быть в курсе хода строительства и увидеть фотографии прогресса! Мы всегда рады делиться с вами результатами нашей работы.
С уважением,
Команда SIPwall




























