Завершено строительство дома из СИП панелей в д. Дьяково, Ивановской области.
Выполнены работы по устройству свайно-винтового фундамента, изготовлению и возведению домокомплекта, устройство кровли - металлочерепица, фасад - камень White hills, устройство водосточной системы, софитов.
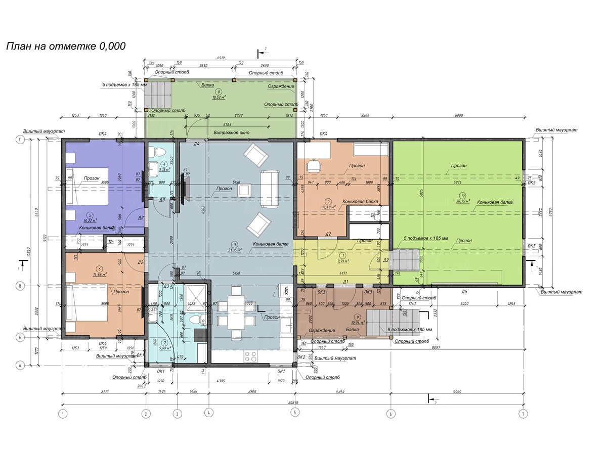
Комплектация: нулевое перекрытие -выполнены из СИП панелей 224 мм, несущие стены дома выполнены из СИП панелей 174 мм., внутренние несущие стены из СИП панелей - 174 мм, внутренние не несущие перегородки - СИП панели - 124 мм. Кровля - выполнена из СИП панелей 224 мм по клееным балкам производства компании СИПВОЛЛ.
Все СИП панели SIPwall толщиной 224/174/124 мм (плиты OSB-3 толщиной 12 мм "Калевала" Россия, высшего класса экологической безопасности и фасадный пенополистирол ПСБ-С 25 высшей категории качества по ГОСТ 15588-06 толщиной 200/150/100 мм производства завода "PolarPlast" Россия) нарезаны и обрусованы сухим строганным брусом в соответствии с проектной документацией.
На выходе с завода «СИПВОЛЛ» домокомплект имеет 99-% ную готовность.










