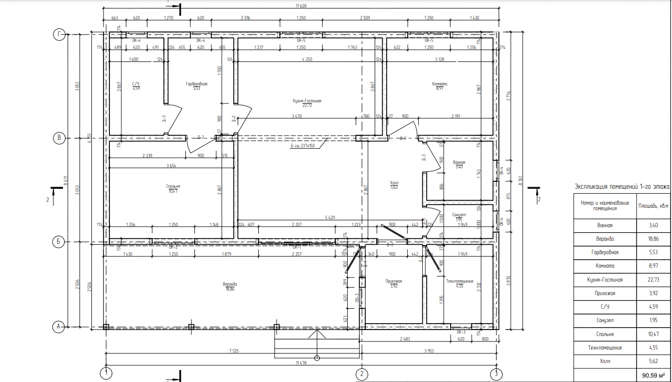
Завершение строительства дома по проекту "МИСТИКА - Е" с изменениями в планировке
Дорогие друзья!
Мы рады сообщить, что строительство дома по проекту "МИСТИКА - Е" с небольшими изменениями в планировке в КП Старокупавинский квартал, Московская область, Богородский г.о., успешно завершено!
Основные работы выполнены:
Фундамент: Устройство прочного и надежного фундамента, который обеспечивает долговечность и устойчивость дома.
Сборка домокомплекта: Завершен монтаж стен и перекрытий из СИП панелей, что гарантирует высокую энергоэффективность и надежность всей конструкции.
Благодаря современным технологиям и профессионализму нашей команды, дом полностью готов к заселению и долгой службе своим владельцам. Мы гордимся результатом и уверены, что этот уютный и функциональный дом станет прекрасным местом для жизни.
Спасибо, что следили за ходом строительства вместе с нами. Оставайтесь на связи, впереди еще много интересных проектов!










