Компания SIPwall завершила строительство дома по проекту КОСТРОМА в стиле ХайТек в СНТ Вахнеевка, г. Химки!
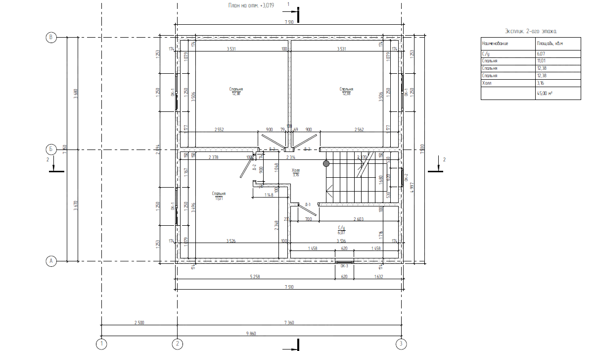
Рады сообщить, что в живописном уголке Подмосковья мы завершили реализацию стильного и современного проекта дома площадью 116,56 м².
Основные характеристики проекта:
Просторная кухня-гостиная площадью 25,71 м² с панорамными окнами.
Комфортные спальни для всей семьи на обоих этажах.
Два санузла для максимального удобства.
Просторная терраса (18,75 м²) для отдыха и приятного времяпровождения.
Выполненные этапы работ:
Устройство фундамента.
Сборка домокомплекта из СИП-панелей.
Монтаж кровли.















