Компания SIPwall приступила к строительству дома в стиле "Шале" по индивидуальному проекту в деревне Противье, Тверской области.
Текущие и предстоящие работы:
Монтаж домокомплекта: Установка стен и перекрытий из СИП-панелей для создания теплого и надежного дома.
Устройство кровли: Монтаж качественной крыши, которая обеспечит защиту от погодных условий.
Установка окон ПВХ: Окна для светлого и комфортного пространства.
Устройство фасада: Придание дому завершенного и стильного внешнего вида.
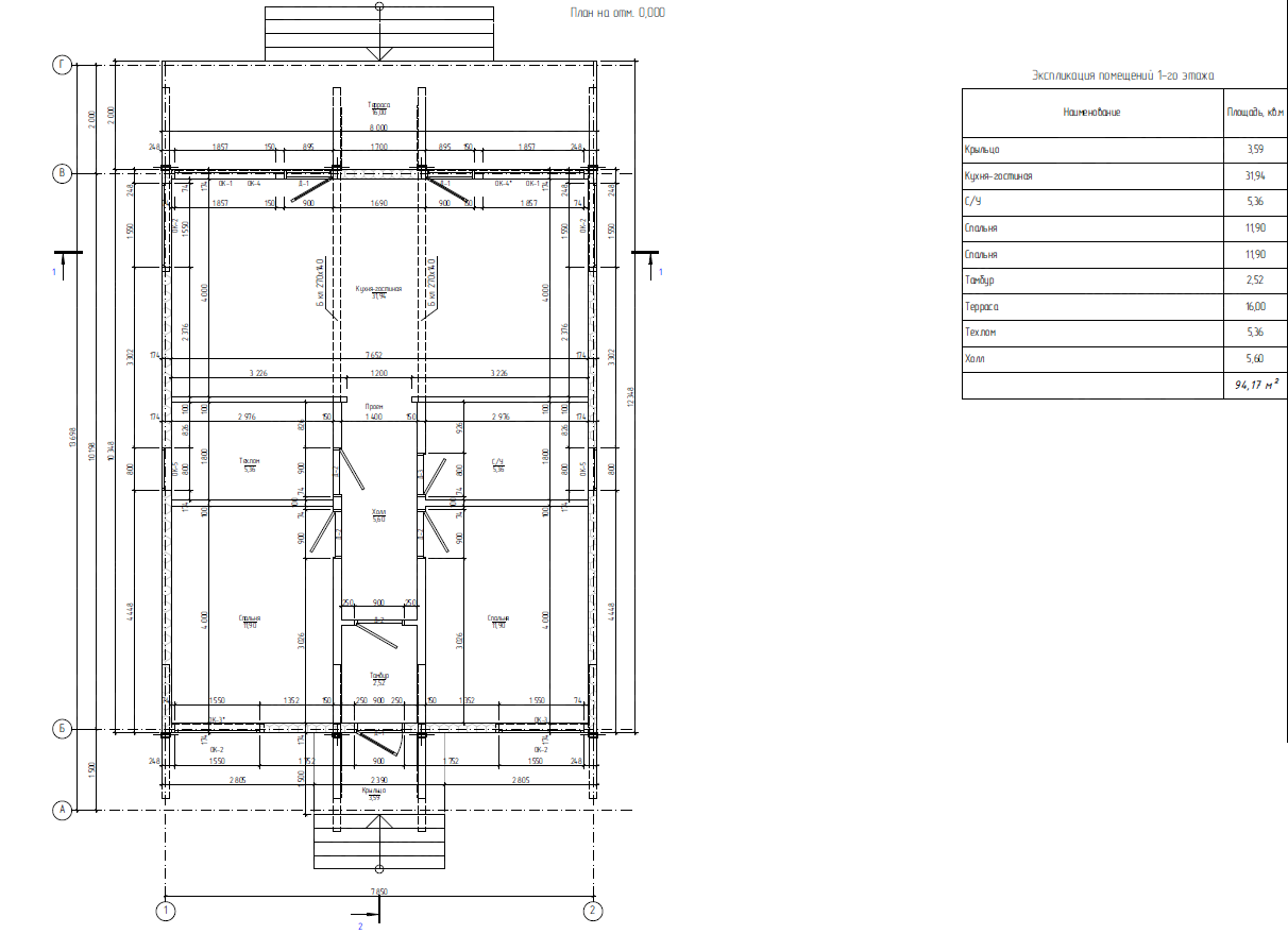
Общая площадь дома: 94,17 м².
Этот дом станет прекрасным местом для загородной жизни, обеспечивая комфорт и уют для всей семьи.
Следите за нашими новостями, чтобы быть в курсе хода строительства и увидеть наши результаты!
































