Завершение строительства дома в Костроме, СНТ «Пчёлка»
Мы завершили основной цикл работ по данному объекту.
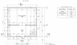
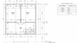
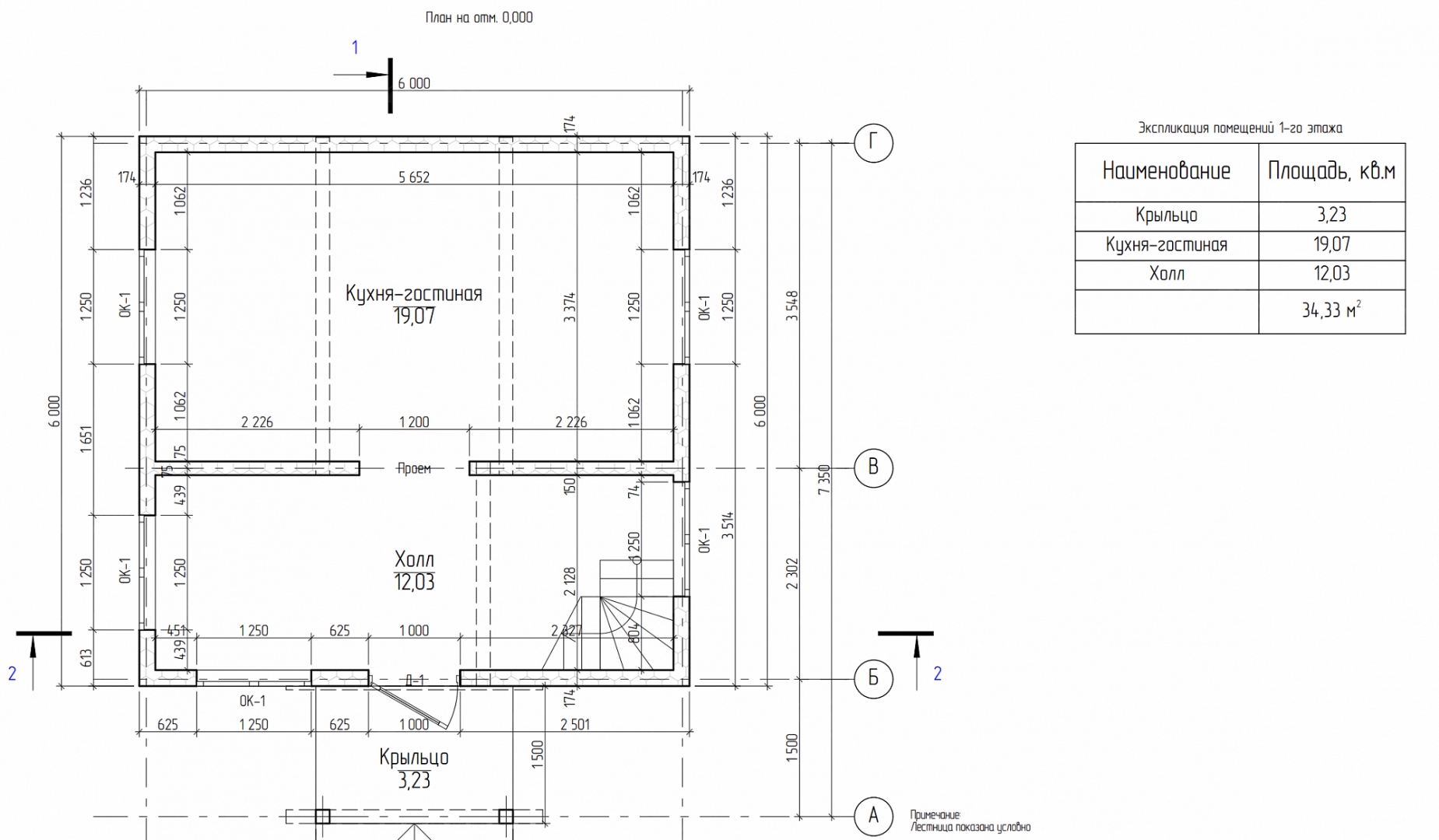
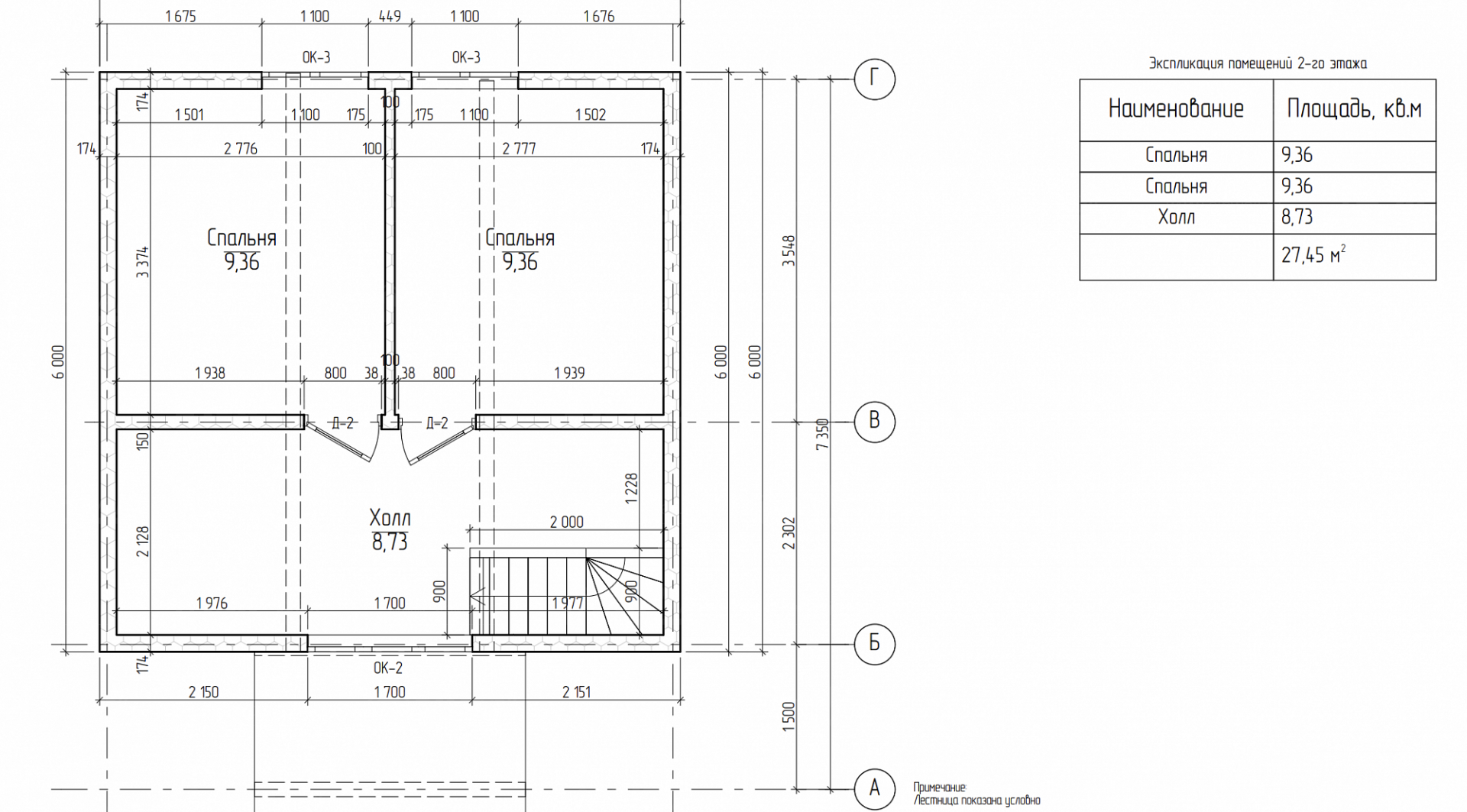
Дом полностью смонтирован из SIP-панелей, выполнено устройство кровли и уложена металлочерепица. Установлены окна, сформирован тёплый контур здания.
Дом приобрёл завершённый архитектурный вид — аккуратная двускатная кровля, чёткая геометрия фасадов и надёжная конструкция, готовая к дальнейшим этапам.
На этом этапе наша часть работ завершена.
Дальнейшую внутреннюю и внешнюю отделку заказчик будет выполнять самостоятельно.
Благодарим за доверие и рады, что ещё один дом SIPwall стал частью загородной жизни в Костромской области
Если вы планируете строительство дома — можем реализовать как полный цикл «под ключ», так и монтаж домокомплекта с передачей объекта на последующие работы.




















