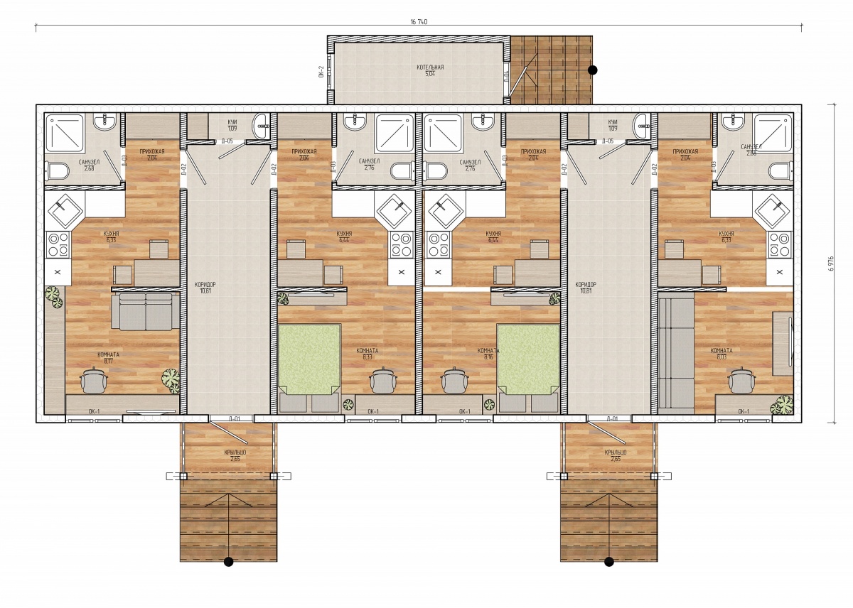
Компания СИПВОЛЛ завершила строительство мини гостиницы из СИП панелей в Шуйском районе, местечко Бор.
Фундамент - винтовые сваи
Комплектация домокомплекта: СТАНДАРТ
Комплектация домокомплекта: перекрытие на отметке +0.000 - СИП 224У мм., несущие стены дома выполнены из СИП панелей 174 мм., внутренние несущие стены и внутренние не несущие перегородки выполнены по каркасной технологии. Перекрытие межэтажное - лаги с настилом ОСБ-22 мм. Чердачное перекрытие - выполнена из СИП панелей 174У мм. Кровля - стропильная система
Все СИП панели SIPwall толщиной 224/174/124 мм (плиты OSB-3 толщиной 12 мм "Калевала" Россия и фасадный пенополистирол ПСБ-С 25 по ГОСТ 15588-14 толщиной 200/150/100 мм производства завода "PolarPlast", Россия) нарезаны и обрусованы сухим строганным брусом камерной сушки в соответствии с проектной документацией.
Домокомплект - изготовлен по проекту из СИП панелей произведенный по технологии SIPwall (ЭКОПАН) на собственном заводе расположенном в г. Шуя, Ивановской области. При изготовлении домокомплекта панельно каркасного дома используется только сухой строганный брус камерной сушки, обработанный огнебиозащитным составом.
На выходе с завода «СИПВОЛЛ» домокомплект имеет 99-% ную готовность.
Монтажные работы - выполняются профессиональной бригадой компании SIPwall












































