Завершение строительства одноэтажного дома по индивидуальному проекту в деревне Крюково, Ивановского района
Дорогие друзья!
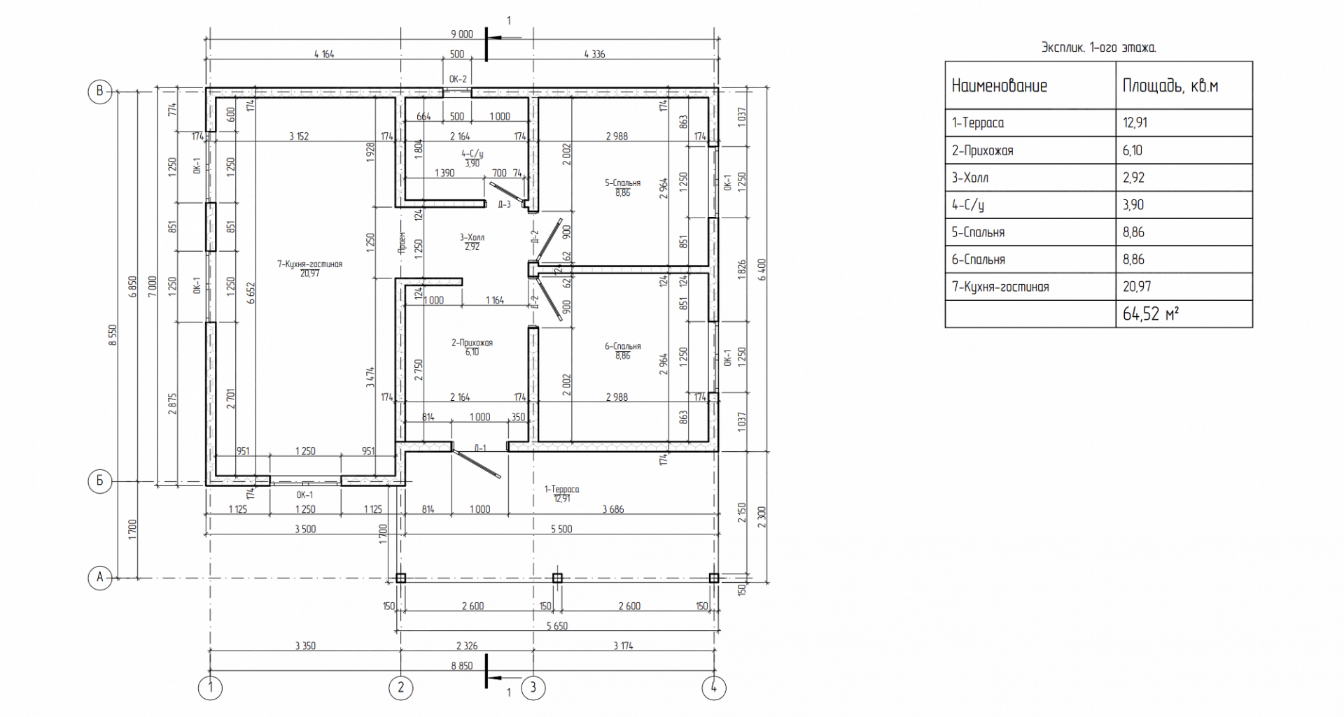
С радостью сообщаем, что компания SIPwall успешно завершила строительство одноэтажного дома по индивидуальному проекту в деревне Крюково, Ивановского района. Этот современный и комфортный дом, с полезной площадью 64,52 м², идеально подходит для семейного проживания.
Основные характеристики проекта:
Местоположение: д. Крюково, Ивановский район
Полезная площадь: 64,52 м²
Этажность: 1 этаж
Планировка дома:
Терраса: 12,91 м²
Прихожая: 6,10 м²
Холл: 2,92 м²
Санузел: 3,90 м²
Спальня 1: 8,86 м²
Спальня 2: 8,86 м²
Кухня-гостиная: 20,97 м²
Этот уютный дом включает просторную кухню-гостиную, две уютные спальни, функциональную прихожую, холл и санузел. Также предусмотрена терраса, где можно наслаждаться свежим воздухом и проводить время с семьей и друзьями.
Используя современные технологии и материалы, мы создали комфортное и долговечное жилье, отвечающее всем требованиям наших клиентов. Мы гордимся проделанной работой и с нетерпением ждем возможности показать вам результаты нашего труда.
Следите за нашими обновлениями, чтобы увидеть фотографии готового дома и узнать больше о наших проектах.






















