Дружба

Стоимость строительства СИП дома под ключ*:

Домокомплект №1
ЛЮКС
№2
ПРЕМИУМ
№3
СТАНДАРТ
№4
ГАРАНТ
Стоимость домокомплекта
(дом заводской готовности с крыльцом и верандой)

834 468

792 556

553 538
Гарантия и производство
Гарантия на домокомплект* 5 лет
Домокомплект изготавливается из трехслойных СИП панелей, произведенных по технологии SIPwall (ЭКОПАН) на собственном заводе, расположенном в г. Шуя, Ивановской области. При изготовлении домокомплекта панельно-каркасного дома используется только строганный пиломатериал камерной сушки, обработанный огнебиозащитным составом «Wood Shield» в заводских условиях. Все СИП панели домокомплекта изготовлены в соответствии с конструктивной проектной документацией, разработанной собственным проектным отдел компании SIPwall, и обрусованы сухим строганным пиломатериалом. На выходе с завода SIPwall домокомплект имеет 99%-ю готовность.
Рабочая документация
Эскизный проект (ЭП) дома (Типовой/Индивидуальный) X X X X
Конструктивная документация (КД) для сборки домокомплекта разработанная с учетом расчета силовых конструкций на прочность. X X X X
Обвязка фундамента
Деревянный ростверк 200 х 150, 150 х 150 X X X X
Перекрытие на отметке +0.000
Трехслойная усиленная СИП панель SIPwall 224У/174У мм (OSB-3 12 мм, Россия, фасадный самозатухающий пенополистирол ППС 14 200/150 мм, Россия), вшитый конструктивный пиломатериал камерной сушки, строганный, обработанный огнебиозащитным составом «Wood Shield» в заводских условиях. X X X X
Стены наружные
Трехслойная СИП панель SIPwall 174 мм (OSB-3 12 мм, Россия, фасадный самозатухающий пенополистирол ППС 14 150 мм, Россия), вшитый конструктивный пиломатериал камерной сушки, строганный, обработанный огнебиозащитным составом «Wood Shield» в заводских условиях. X X X X
Стены внутренние - межкомнатные, несущие
Трехслойная СИП панель SIPwall 174 мм (OSB-3 12 мм, Россия, фасадный самозатухающий пенополистирол ППС 14 150 мм, Россия), вшитый конструктивный пиломатериал камерной сушки, строганный, обработанный огнебиозащитным составом «Wood Shield» в заводских условиях. X
Деревянный каркас сечением стоек 37х147 (пиломатериал камерной сушки, строганный, обработанный огнебиозащитным составом «Wood Shield» в заводских условиях). X X X
Стены внутренние - межкомнатные, ненесущие
Трехслойная СИП панель SIPwall 124 мм (OSB-3 12 мм, Россия, фасадный самозатухающий пенополистирол ППС 14 100 мм, Россия), вшитый конструктивный пиломатериал камерной сушки, строганный, обработанный огнебиозащитным составом «Wood Shield» в заводских условиях. X
Деревянный каркас сечением стоек 37х97 (пиломатериал камерной сушки, строганный, обработанный огнебиозащитным составом «Wood Shield» в заводских условиях). X X X
Перекрытие межэтажное
Трехслойная усиленная СИП панель SIPwall 224У/174У мм (OSB-3 12 мм, Россия, фасадный самозатухающий пенополистирол ППС 14 200/150 мм, Россия), вшитый конструктивный пиломатериал камерной сушки, строганный, обработанный огнебиозащитным составом «Wood Shield» в заводских условиях. X X
Деревянные балки с покрытием чернового пола OSB-3 толщиной 22 мм (пиломатериал камерной сушки, строганный, обработанный огнебиозащитным составом «Wood Shield» в заводских условиях). X X
Перекрытия второго этажа и/или крыша мансарды
Трехслойная усиленная СИП панель SIPwall 224У/174У мм (OSB-3 12 мм, Россия, фасадный самозатухающий пенополистирол ППС 14 200/150 мм, Россия), вшитый конструктивный пиломатериал камерной сушки, строганный, обработанный огнебиозащитным составом «Wood Shield» в заводских условиях. X X X
Деревянные балки/стропильная система под утепление. X
Балки - несущие конструкции
Комплект балок, стоек (сшитые/клееные). (пиломатериал камерной сушки, строганный, обработанный огнебиозащитным составом «Wood Shield» в заводских условиях). X X X X
Крыльцо, терраса, навес, балкон
Пиломатериал, необходимый для изготовления конструктива. X X X X

Дополнительные услуги:

Комплектация домокомплекта №4

  • Перекрытия цоколя - усиленные СИП панели толщиной 224/174 мм.
  • Стены наружные - СИП панели толщиной 174 мм.
  • Перекрытие межэтажное - деревянные балки с покрытием чернового пола OSB-3 толщиной 22 мм.
  • Перекрытия второго этажа и/или крыша мансарды - деревянные балки/стропильная система
  • Стены межкомнатные - деревянный каркас сечением стоек 147 и 97 мм.
  • Комплект балок, стоек (сшитые/клееные).
  • Пиломатериал необходимый для изготовления крыльца, террас.
  • КД – проектная документация для сборки домокомплекта.
Наименование Описание Стоимость,
Устройство фундамента Фундамент на Ж/Б сваях. Забивные сваи — это железобетонные изделия, которые представляют собой стержни с квадратным сечением и одним заостренным концом. Сваи погружают в грунт ударным методом, этот тип свай — надежное и устойчивое основание для фундамента с максимальной несущей способностью. Для фундаментов мы используем железобетонные сваи габаритами 150x150x3000 мм 90 000
Монтаж домокомплекта ** Разгрузка и складирование домокомплекта на участке, сборка дома на готовом фундаменте выполняются штатной, профессиональной бригадой компании SIPwall. Более подробно об условии строительства можно ознакомиться здесь. 98 658
Крепёж *** Комплект необходимого крепежа для сборки домокомплекта (саморезы SPAX, монтажная пена, саморезы по дереву, крепежные пластины, шпильки, гайки и т.д.) 66 425
Кровля
Устройство кровли *** Укладка гидроизоляционной мембраны, устройство обрешетки + контробрешетки, металлочерепица "Grand Line" (для плоских кровель - мембранная кровля) + монтаж, от 177 024
Двери и окна
Установка окон, балконной двери *** Энергоэффективные двухкамерные стеклопакеты (класс А+)  72 мм,  5 камерный профиль, 2-х камерные, толщина стеклопакета  -40 мм. от 72 352
Установка входной двери*** Входная дверь  + установка, от 50 000

* расширенная гарантия при заключении договора на строительство дома с наружной отделкой (фундамент, кровля, окна, фасад)

** более 400 км. от г. Иваново - стоимость монтажа домокомплекта по тёплому контуру увеличится до 3000 р./м².

*** окончательную стоимость по данным позициям, необходимо уточнять непосредственно перед заказом данного вида услуг.


Проект дома
в подарок
Гарантия
5 лет
Посадка дома
на участок бесплатно
Проект свайного
фундамента бесплатно



Фасады



О проекте

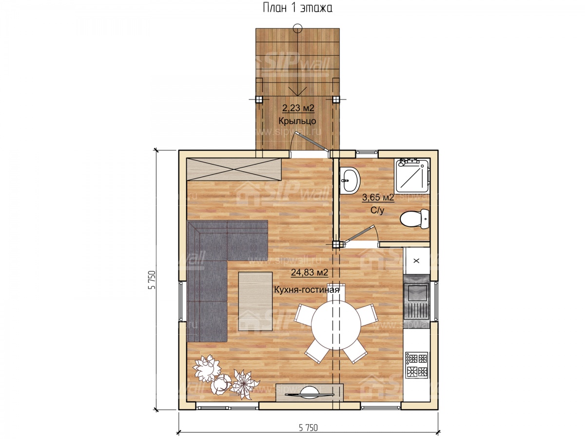
Дружба – экономичный вариант строительства дачного или гостевого дома. Этот дом можно разместить на участке любой площади. Просторная комната разместит с комфортом всю большую семью.
Стоимость домокомлекта:
553 538 руб.

Комплектация домокомплекта №4

  • Перекрытия цоколя - усиленные СИП панели толщиной 224/174 мм.
  • Стены наружные - СИП панели толщиной 174 мм.
  • Перекрытие межэтажное - деревянные балки с покрытием чернового пола OSB-3 толщиной 22 мм.
  • Перекрытия второго этажа и/или крыша мансарды - деревянные балки/стропильная система
  • Стены межкомнатные - деревянный каркас сечением стоек 147 и 97 мм.
  • Комплект балок, стоек (сшитые/клееные).
  • Пиломатериал необходимый для изготовления крыльца, террас.
  • КД – проектная документация для сборки домокомплекта.
Общая площадь: 33.06 м2
В том числе:
Крыльцо: 2.23 м2
Количество комнат: 2 м
Высота потолка: 3.2
Площадь застройки: 35.29 м2
Размер дома: 5.6 х 5.75 м
Высота дома: 3.8 м
Площадь кровли: 55.32 м2
Площадь фасада: 54.76 м2
Угол кровли: 25°
Строительство в кредит