Модуль БарнХаус 40 HOME

Включено в стоимость

Каркас:

  • Конструктив модульного дома, изготавливается из трехслойных СИП панелей, произведенных по технологии SIPwall. При изготовлении используется только строганный пиломатериал камерной сушки, обработанный огнебиозащитным составом.
  • Утепление: пол — 150 мм, стены и кровля — 150 мм.
  • Веранда — сухая строганная доска 115 × 30 мм.

Наружная отделка:

  • Кровля — ПВХ мебрана/профлист С-20 0,5 мм, код цвета RAL 7024.
  • Внешняя отделка: комбинированная — вертикальная имитация бруса (сорт АВ, 135 × 20 мм, графит/шоколад) + профлист С-20 0,5 мм, код цвета RAL 7024.

Остекление:

  • Окна и двери: энергоэффективные двухкамерные стеклопакеты (класс А+) 72 мм, 5-камерный профиль толщина стеклопакета — 40 мм (цвет графит/шоколад).

Внутренняя отделка:

  • Стены: вертикально — вагонка «Штиль», 16 мм, горизонтально — имитация бруса 140 х 20 мм (лессирующее покрытие стен).
  • Напольное покрытие — кварцвинил с текстурой дерева.
  • Пол в с/у — плитка.
  • Межкомнатные двери — белого цвета.
  • Потолки: натяжные, белый со встроенными светильниками.

Коммуникации:

  • Разводка водопровода и канализации.
  • Встроенная электрика и встраиваемый центральный электрощит.
  • Наружное и внутреннее освещение.

Оборудование и сантехника:

  • Вентиляционный клапан.
  • Теплые полы в ванной комнате.
  • Ванная комната: умывальник, ванна, смесители, унитаз.
  • Бойлер на 100 литров.
  • Скрытая/открытая водосточная система.
  • Греющий кабель 4 м.

Обратите внимание! Мебель, бытовая техника, предметы интерьера не входят в стоимость дома.

Не включено в стоимость

Обязательные дополнительные расходы:

  • Монтаж модульного дома.
  • Фундамент свайно-винтовой или ЖБИ сваи.
  • Доставка модулей от производства до участка.
  • Кран для разгрузки и установки модулей.
  • Подвод внешних коммуникаций.
  • Вывоз строительного мусора.

Опциональные дополнительные расходы:

  • Ограждение веранды.
  • Терраса у входа.
  • Лестница.

Гарантия и оплата

  • Гарантия по договору: 5 лет на конструктив, 1 год на инженерию, 1 год на отделочные материалы, 1 год на электроприборы.
  • Аванс 70% при заключении договора, второй платёж 30% после готовности дома и его приемки на производстве.
  • Наша компания аккредитована в Сбербанке, но в связи с введением эскроу-счетов для льготных ипотечных программ, эти программы для приобретения наших домов недоступны (мы не работаем с эскроу).
  • Мы работаем с материнским капиталом.
  • Сроки изготовления зависят от очереди на производстве, их можно уточнить по телефону или почте, указав модель дома и адрес строительства.

Важная информация о фундаменте, доставке и монтаже

Коммуникации на участке:

Организацию коммуникаций на участке (водопровод, канализация, электроснабжение) выполняет заказчик самостоятельно. Наша монтажная бригада осуществляет подключение дома к коммуникациям, которые уже подведены на участок. К моменту начала монтажных работ коммуникации должны быть подведены к указанным точкам согласно схеме фундамента. Обратите внимание: подвод коммуникаций не должен затруднять проведение монтажных работ.

Фундамент:

Фундамент должен быть подготовлен заказчиком заранее, с соблюдением всех технических требований компании SIPwall. Работы по строительству фундамента выполняют специализированные подрядные организации. Рекомендуем заранее договориться с такими компаниями, поскольку возможно наличие очереди.

Доставка:

Транспортировку модулей осуществляют специализированные перевозчики. Мы помогаем в выборе надежной компании-перевозчика. Если модули SIPwall имеют негабаритные размеры по действующим нормативам перевозки по дорогам РФ, потребуется привлечение компании с дополнительным оформлением разрешительной документации, что может повлиять на конечную стоимость доставки.

Если доставка выполняется тралом, имейте в виду, что тралы обычно не могут подъехать непосредственно к участку. Для перегрузки и транспортировки модулей от места разгрузки трала до участка потребуется манипулятор (данная услуга является дополнительной и оплачивается отдельно).

Подъездные пути и участок:

Для успешной доставки и установки модулей подъездные пути должны обеспечивать свободный проезд крупной строительной техники. Минимальная ширина дороги и ворот — 3,6 м, высота над проезжей частью (например, до проводов) — не менее 4,5 м.

Обратите внимание: использование крана и манипулятора может привести к повреждениям ландшафта или садовых дорожек. К сожалению, подобная техника не всегда может работать без последствий для участка.

В случае, если участок или подъездные пути не подготовлены, а модули уже доставлены на монтаж, ответственность за устранение препятствий, а также оплату простоев техники и монтажной бригады несет заказчик.

Монтаж:

Для выполнения монтажных работ требуется использование крана. В ситуации, когда модули доставляются тралом, может понадобиться использование двух кранов: один для разгрузки с трала на промежуточную площадку, второй – для монтажа модулей на фундамент непосредственно на участке.

При работе на участках с влажным грунтом рекомендуется заранее обеспечить устойчивость крановой техники при помощи дорожных плит.

Фасады

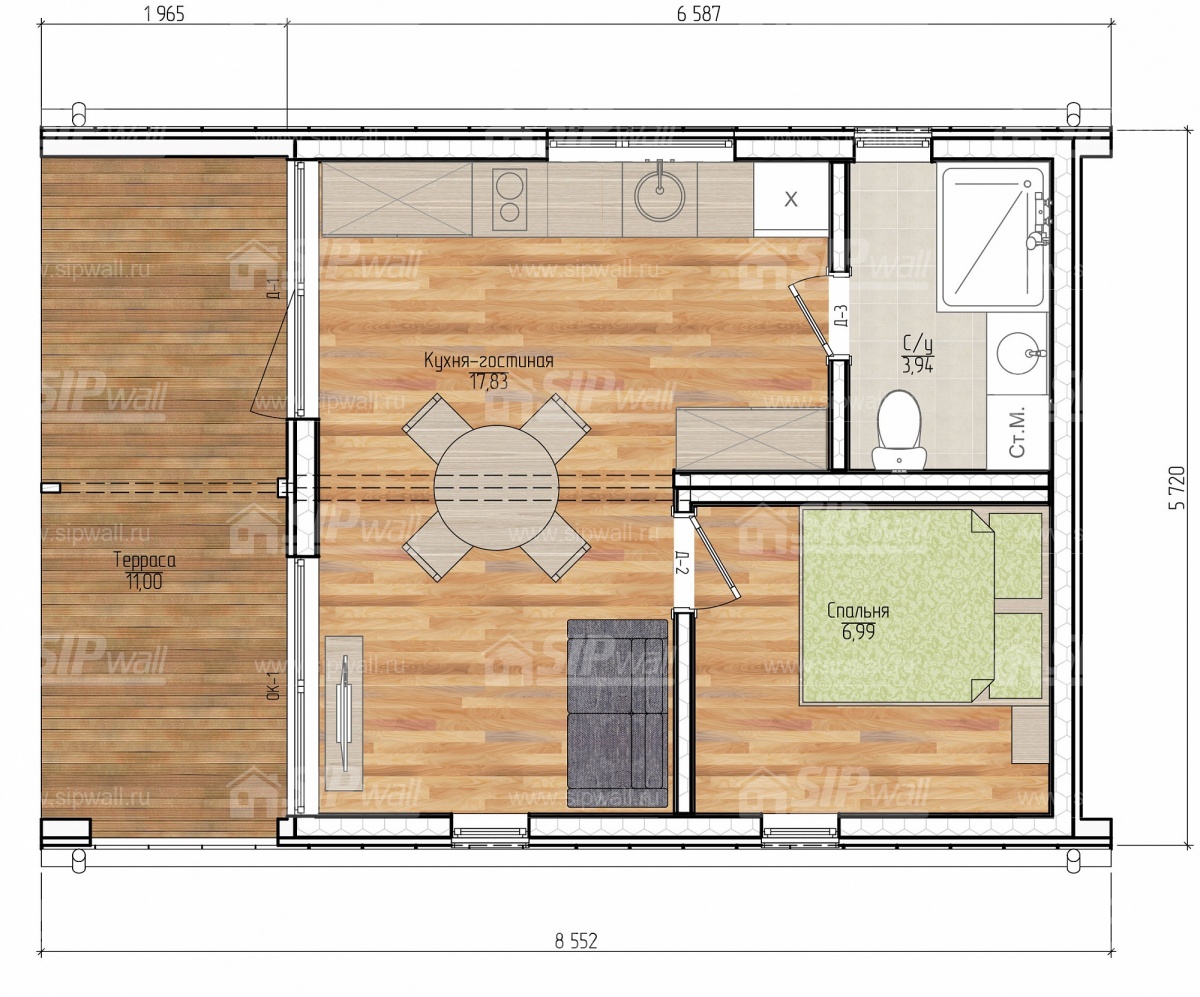
Общая площадь: 46.21 м2
В том числе:
Веранда: 11 м2
Количество комнат: 2 м
Высота потолка 1-го этажа: 2.7
Площадь застройки: 46.21 м2
Размер дома: 8,5х5.72 м
Высота дома: 3.17 м
Площадь кровли: 49 м2
Строительство в кредит